Beschrijving
Goed gelegen tussenwoning met onder meer drie slaapkamers, een garage, een verrassend grote tuin en vrij achterom. Serooskerke is centraal gelegen op Walcheren. Strand, zee en duinen zijn binnen tien minuten bereikbaar, evenals het centrum van Middelburg.
De woning die gebouwd is in 1958, verdient een upgrade naar de eisen van de huidige tijd. De nog vrij in te delen (doorzon)woonkamer heeft door de grote ramen een mooie lichtinval en biedt aan de achterzijde fijn uitzicht over uw tuin. Het vele groen aan de voorzijde versterkt het gevoel van ruimte en geeft mooi zicht vanuit de woonkamer. De woning is gelegen op 194m² eigen grond, heeft een bijkeuken en ruime berging.
De diepe omheinde achtertuin is gelegen op het zuiden en biedt volop ruimte voor spelende kinderen of tuinliefhebbers. Er is altijd wel een plaatsje in de zon of juist in de schaduw te vinden. Achter op het perceel staat een eenvoudige, maar ruime garage van ca. 22m², geschikt voor het stallen van één auto, fietsen of als hobbyruimte. Door het ontbreken van directe bebouwing achter de woning, staat de tuin garant voor veel privacy.
Kortom, een mooie kans!
Indeling
Begane grond:
Via de entree komt u in de gang met meterkast, toilet, trapopgang en toegang naar keuken en woonkamer. De woonkamer is voorzien van een lichte tegelvloer, heeft een wand- en plafondafwerking van houten schroten. De woning wordt grotendeels verwarmd door de royale gaskachel. De keuken is geplaatst in een wandopstelling en voorzien van een spoelbak, gaskooktoestel, oven en koelkast. Daarnaast is er een ruime trapkast. Via de aan de keuken gelegen bijkeuken met uitstortgootsteen, cv-opstelling en schuifpui, loopt u zo de achtertuin in.
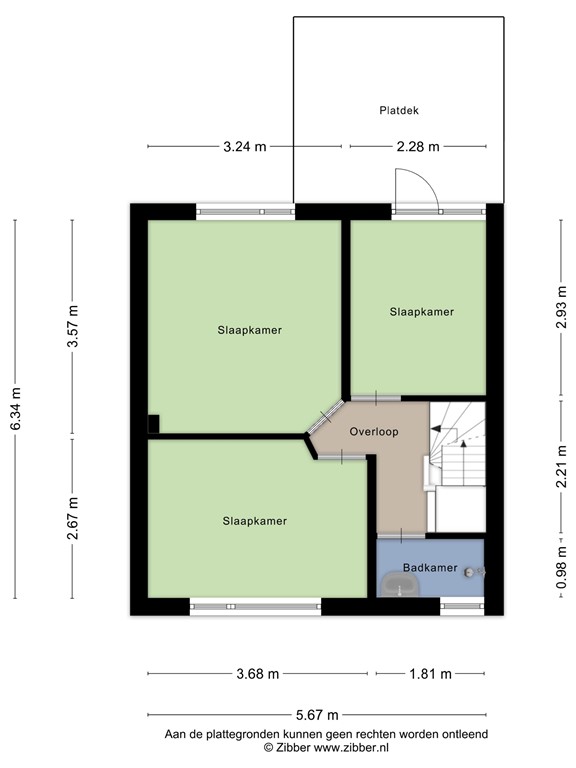
Eerste verdieping:
Overloop met drie slaapkamers en doucheruimte. Van de twee aan de achterzijde gelegen slaapkamers is er één voorzien van laminaat. De derde slaapkamer is aan de voorzijde gelegen, evenals de doucheruimte. Alle slaapkamers zijn voorzien van rolluiken.
Zolder:
De praktische bergzolder is bereikbaar door middel van een vaste trap en is voorzien van een
dakraam.
Garage:
De ruime, aan de achterzijde van het perceel gelegen garage is opgetrokken uit betonelementen en gedekt met damwandprofiel. Via deze garage heeft u een vrije achterom.
Algemeen:
- bouwjaar woning 1958;
- woonoppervlak 82m²;
- bruto inhoud woning 324m²;
- eigen grond 194m²;
- verwarming grotendeels d.m.v. gaskachel;
- warm water d.m.v. recente cv-combiketel;
- geheel voorzien van kunststof kozijnen;
- begane grondvloer beton en houten verdiepingsvloeren;
- in de koopovereenkomst zal een ouderdoms- en asbestclausule worden opgenomen;
- oplevering in overleg;
- tot meerdere zekerheid voor de nakoming van de koopovereenkomst en de daaruit
- voortvloeiende verplichtingen zal van koper een waarborgsom van 10%
- van de koopsom, dan wel een bankgarantie worden gevraagd
Wij nodigen u van harte uit om deze woning in Serooskerke te komen bezichtigen.
Bel ons gerust voor een vrijblijvende afspraak.
Alle verstrekte informatie moet beschouwd worden als een uitnodiging tot het doen van een bod of om in onderhandeling te treden. Er kunnen geen rechten worden ontleend aan deze woninginformatie. Alle opgegeven maten en oppervlakten zijn indicatief.
Plattegronden
182652658_1631621_vroon_begane_grond_first_design_20260225_6512d0.jpg
182652658_1631621_vroon_eerste_verdiepi_first_design_20260225_e989e6.jpg
182652658_1631621_vroon_garage_first_design_20260225_2110f9.jpg
182652658_1631621_vroon_zolder_first_design_20260225_c145eb.jpg