Beschrijving

In de dorpskern van Oostkapelle staat deze charmante twee-onder-een-kapwoning (1966) met voor-, achter- en zijtuin. De woning beschikt over drie slaapkamers, een ruime zolder met vaste trap en een perceel van 226 m² eigen grond. Gelegen in een rustige, groene straat met aan de overkant een speelveldje voor kinderen. Alle dagelijkse voorzieningen zoals een supermarkt, winkels, horeca en school zijn op loopafstand bereikbaar. Bovendien liggen strand, bos en duinen op korte fietsafstand. Een woning met veel potentie om naar eigen smaak te moderniseren tot uw droomhuis!

Begane grond
Entree/hal met lambrisering, meterkast, trapopgang en toilet. Vanuit de hal is er toegang tot de gesloten keuken met wandopstelling. De keuken geeft doorgang naar de woonkamer en naar een ruime bijkeuken met witgoedaansluitingen. De doorzonwoonkamer heeft de karakteristieke grote raampartijen uit de jaren ’60 en een extra raam in de zijgevel, waardoor er veel licht binnenkomt. De praktische bijkeuken is ideaal voor het opbergen van voorraad, huishoudelijke apparatuur of andere spullen. Van hieruit is er toegang tot het beschutte terras op het zuiden, een fijne plek om van de zon te genieten. 

Eerste verdieping
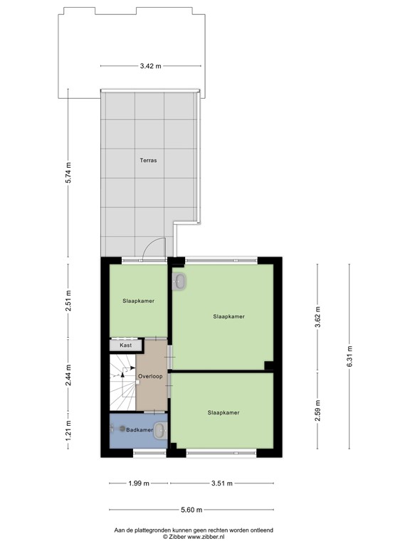
Overloop met drie slaapkamers: twee ruime slaapkamers en een kleinere slaapkamer aan de achterzijde met vaste kast en deur naar het dakterras. De badkamer aan de voorzijde is geheel betegeld en voorzien van douche en wastafel.

Tweede verdieping
Via een vaste trap bereikbare zolder met volop bergruimte, de cv-opstelling en mogelijkheid om een extra slaap- of werkkamer te realiseren.

Buiten
De woning beschikt over een voor-, achter- én zijtuin, waardoor er de hele dag een plek in de zon of schaduw te vinden is. Achter in de tuin, tegen de bijkeuken aan, bevindt zich een voormalig duivenverblijf. Het beschutte terras op het zuiden biedt een ideale plek om rustig buiten te zitten en te genieten van het zonnetje. 

Kortom: een fijne gezinswoning met veel ruimte, licht en potentie, op een aantrekkelijke locatie in Oostkapelle.

Algemene kenmerken
•	Bouwjaar: 1966.
•	Woonoppervlak: ca. 86 m².
•	Perceeloppervlak: 226 m² eigen grond.
•	Aantal slaapkamers: 3 (plus extra mogelijkheid voor op zolder).
•	Zolder: Vaste trap, CV-opstelling aanwezig.
•	Keuken: Gesloten, toegang tot woonkamer en bijkeuken.
•	Bijkeuken: Witgoedaansluiting.
•	Woonkamer: Doorzon met grote raampartijen, extra zijraam.
•	Vloer: Begane grond beton (geen kruipruimte), verdieping hout.
•	Buitenruimte: Voor-, achter- en zijtuin; terras op het zuiden; voormalig duivenverblijf.
•	Locatie: Rustige straat in dorpskern Oostkapelle, speelveldje tegenover, dichtbij winkels, scholen, horeca, strand, bos en duinen.
•	Extra mogelijkheden: Veel potentie om de woning naar eigen smaak te moderniseren.

Overige informatie
•	Koopovereenkomst: Waarborgsom/bankgarantie van 10%
•	Oplevering: In overleg.
•	Clausules: Ouderdomsclausule, asbestclausule en niet-zelfbewoningsclausule van toepassing.

Bent u nieuwsgierig geworden naar deze woning? Neem gerust contact met ons op voor een bezichtiging op afspraak en ontdek de mogelijkheden om van deze twee-onder-een-kapwoning uw droomhuis te maken!

Kenmerken